Pereiti į pagrindinį turinį

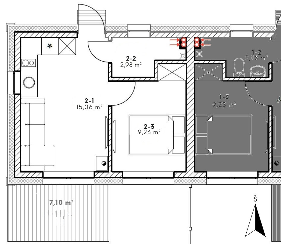
Nr. 3.2 namo planas

3D planas

(Tai tik orientacinis planas, pateiktas neatsižvelgiant į pasaulio kryptis)

27kv 3D

2D planas

D-pietūs-kairė

Informacija

Numeris:3.2
Kambarių skaičius:2
Bendras plotas:27 kv.m
Svetainės/virtuvės plotas:15.06 kv.m
Miegamasis:9.23 kv.m
WC:2.98 kv.m
Terasos orientacija:Pietūs
Kaina:
AKCIJA
99900
94900
Apdaila:Dalinė

Susisiekite