Pereiti į pagrindinį turinį

Nr. 23.1 namo planas

3D planas

(Tai tik orientacinis planas, pateiktas neatsižvelgiant į pasaulio kryptis)

27kv 3D

2D planas

B-rytai-apacia

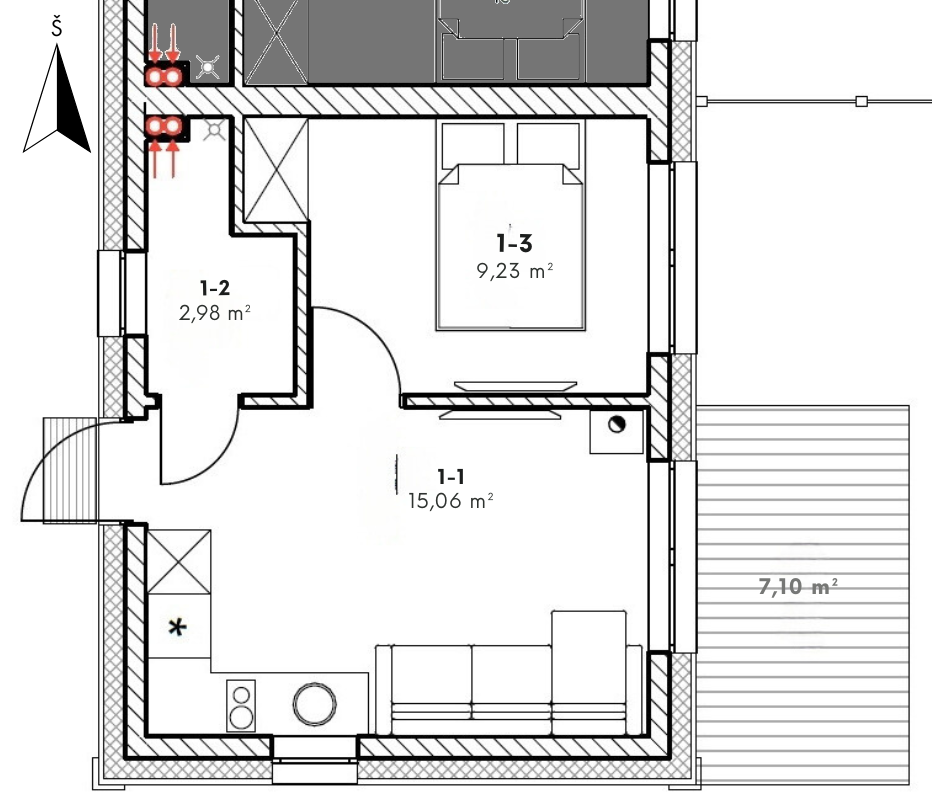
Informacija

Numeris:23.1
Kambarių skaičius:2
Bendras plotas:28 kv.m
Svetainės/virtuvės plotas:15.06 kv.m
Miegamasis:9.23 kv.m
WC:2.98 kv.m
Terasos orientacija:Rytai
Kaina:
AKCIJA
 
Apdaila:Dalinė

Susisiekite