Pereiti į pagrindinį turinį

Nr. 18.2 namo planas

3D planas

(Tai tik orientacinis planas, pateiktas neatsižvelgiant į pasaulio kryptis)

27kv 3D

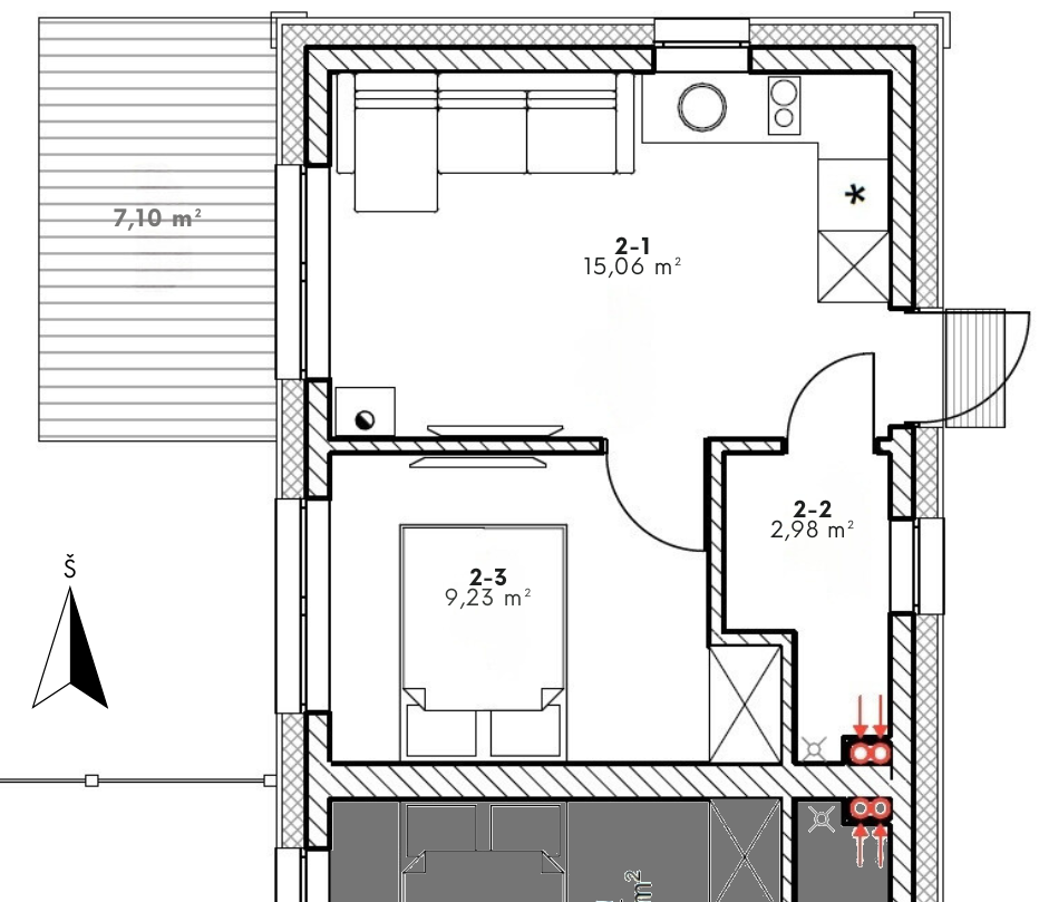
2D planas

D-vakarai-virsus

Informacija

Numeris:18.2
Parduodama žemės sklypo dalis 
Bendras plotas:1,5 aro
Svetainės/virtuvės plotas:15.06 kv.m
Miegamasis:9.23 kv.m
WC:2.98 kv.m
Terasos orientacija:Vakarai
Kaina:25000
  

Susisiekite