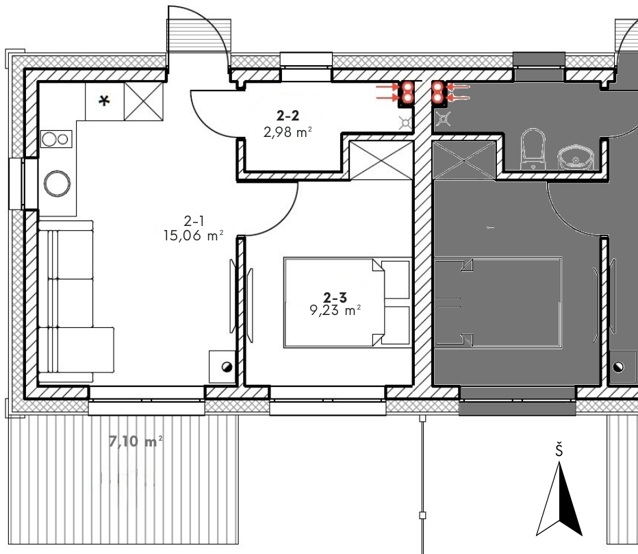
Nr. 16.2 namo planas
3D planas
(Tai tik orientacinis planas, pateiktas neatsižvelgiant į pasaulio kryptis)
2D planas
Informacija
| Numeris: | 16.2 |
| Kambarių skaičius: | 2 |
| Bendras plotas: | 28 kv.m |
| Svetainės/virtuvės plotas: | 15.06 kv.m |
| Miegamasis: | 9.23 kv.m |
| WC: | 2.98 kv.m |
| Terasos orientacija: | Pietūs |
| Kaina: | |
| Apdaila: | Dalinė |