Pereiti į pagrindinį turinį

Nr. 16.1 namo planas

3D planas

(Tai tik orientacinis planas, pateiktas neatsižvelgiant į pasaulio kryptis)

27kv 3D

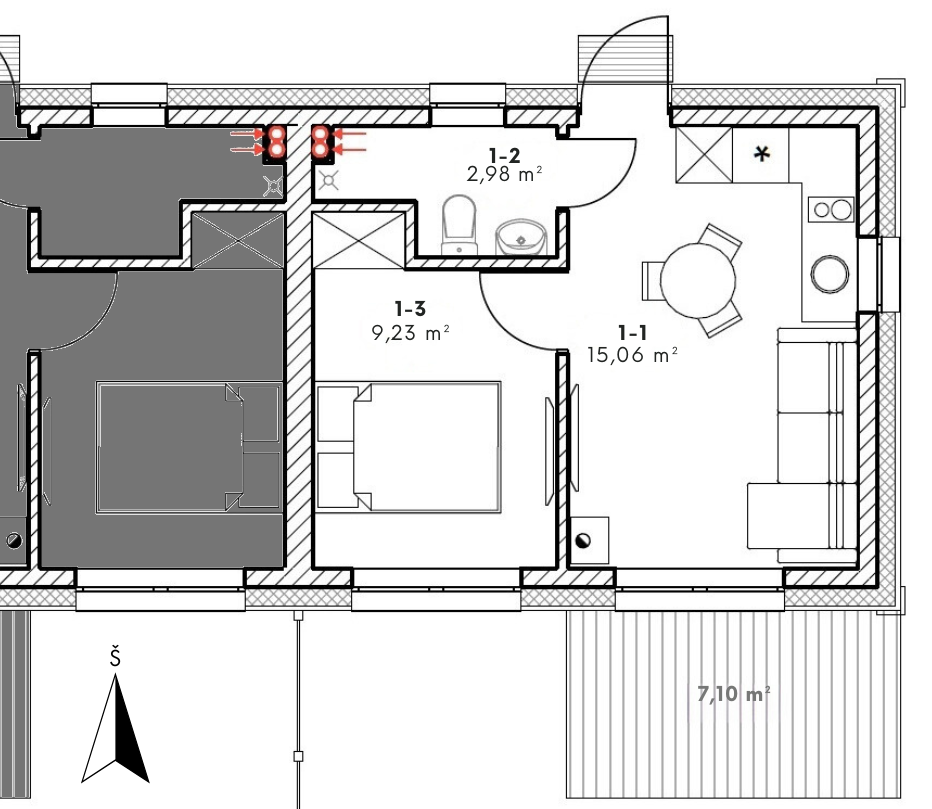
2D planas

A-pietus-desine

Informacija

Numeris:16.1
Kambarių skaičius:2
Bendras plotas:28 kv.m
Svetainės/virtuvės plotas:15.06 kv.m
Miegamasis:9.23 kv.m
WC:2.98 kv.m
Terasos orientacija:Pietūs
Kaina: 
Apdaila:Dalinė

Susisiekite